位置から住まで経済的な住まいづくりをご提案いたします。
営業時間 平日午前9時より17時まで
トップページ
土地
建物
賃貸
お問い合わせ
テナント募集
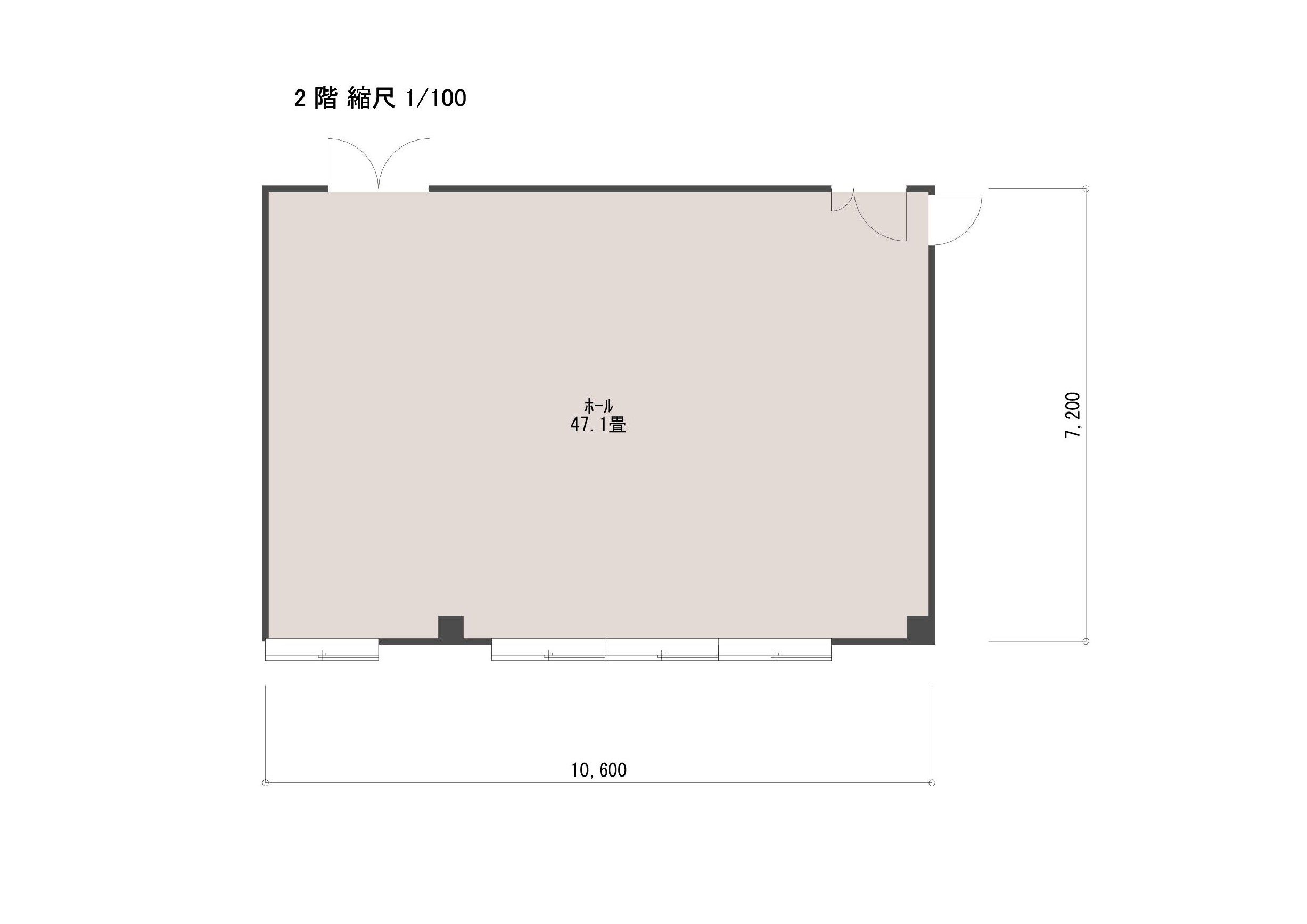
テナント 繊労会館2F
所在地
長岡市新栄町2-3-21
賃料
55,000円
間取り
76.32㎡
駐車場
別途
管理費
5,000円
保険
要加入
敷金
なし
コメント
・権利金2カ月あり
・仲介手数料1ヶ月
・周辺施設充実
構 造
鉄骨造
駐車場
別途 (敷地内空有)
建物階
2階建て
設 備
・公営上下水道
・都市ガス
・ガス暖房
・ミニキッチン(共用部)
・独立トイレ(共用)
・外部階段
建築年月
1993年11月
学 区
東小・刈中
取引態様
仲介
現 状
空室
備 考
・必要面積や設備等ご相談
・駐車場1台5,500円/月(税込)
・鍵交換費用21600円
引渡し
即時
契約期間
2年
こだわり条件